Фото Жк Тринити
Квартиры от
14.6 млн. рублей
Дмитровское шоссе, вл. 71
ЖК «Настроение» Верхние Лихоборы
1
План сдачи III квартал 2023
завершение строительства 30%

Квартиры в ЖК «Тринити»

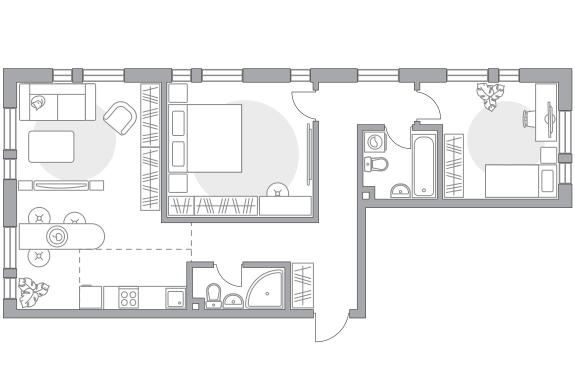
Самые популярные планировки
Photo
1 комн. квартира
29.42
Photo
2 комн. квартира
61.62
Photo
Студия квартира
29.82
ЖК «Настроение»
Еще 218 вариантов квартир!
от 14.6 млн рублей

Выберите параметры квартиры

и получите подходящие планировки с ценами!
ЖК «Тринити» от застройщика "Гранель Девелопмент"

ЖК «Тринити-2» расположенный в САО Москвы, на Дмитриевском шоссе,  представляет собой 1,53 га территории, которая используется под комфортабельную застройку. Близость исторического центра столицы, станции метрополитена «Селигерская», «Верхние Лихоборы», экологический парк «Лихоборка» и хорошая транспортная развязка увеличивают привлекательность ЖК и соответственно, стоимость возводимого жилья.


Особенности жилого комплекса

 Главной особенностью «Тринити-2» является постройка на экологически чистой территории четырех монолитных зданий переменной этажности: до 33 этажей. С квартирами широкой ассортиментной линейкой, в которых предусмотрена планировка  - от 1-комнатных площадью от 28,5 м²  до 103,2 м² «трешек» с высотой потолков – 2,7 м, с отделкой и без отделки.


Стандартным решением для жилищного комплекса является создание на нижних ярусах зданий, помещений  для размещения детского сада, аптек, интернет кафе, магазинов, ресторанов, прачечных, супермаркетов, банков и т.д. Кроме этого, реализуются идеи закрытой, хорошо охраняемой территории, которые увеличивают привлекательность недвижимость ЖК и подчеркивают социальный статус жильцов.


Добираться от центра столицы к ЖК автовладельцам удобно по Дмитриевскому шоссе или через Коровинское шоссе.

Станции метро «Верхние Лихоборы» и «Селигерская» находятся в пешей доступности.


Плюсы и минусы

Неоспоримым плюсом является хорошо продуманная социально-бытовая инфраструктура и перспектива дальнейшего развития района.

К недостаткам можно отнести соседство с заводом, изготавливающим металлоконструкции.


Итоговые перспективы

В основном, отзывы о ЖК «Тринити-2» положительные, так как экология, развитая инфраструктура и доступность к центру, помноженные на привлекательную стоимость квадратного метра, являются очень значительными факторами выбора. Поэтому новый формат жилья, по прошествии некоторого времени (лет 5÷6) и после окончания всех работ, станет привычным, обжитым, достаточно комфортным и конечно же инвестиционно привлекательным местом жительства.

Архитектура и отделка

Photo
Photo
Photo
Photo

Бесплатная консультация менеджера:


Подробно и ненавязчиво расскажем Вам о всех условиях приобретения, стоимости и типах квартир в ЖК «Тринити»

Ипотечный калькулятор

Запросите расчет покупки в ипотеку в 2 клика!
Бесплатная консультация специалиста по вопросам приобретения жилья в ипотеку:

Наши контакты

ТЕЛЕФОН
+7 (800) 222-79-46
АДРЕС
Дмитровское шоссе, вл. 71
СТАНЦИЯ МЕТРО
Верхние Лихоборы
загрузка карты...
Наверх