Фото Жк Клубный под Зеленоградом
Московская обл., Солнечногорский район,
дер. Жилино
ЖК «Настроение» Митино
1
Дом сдан

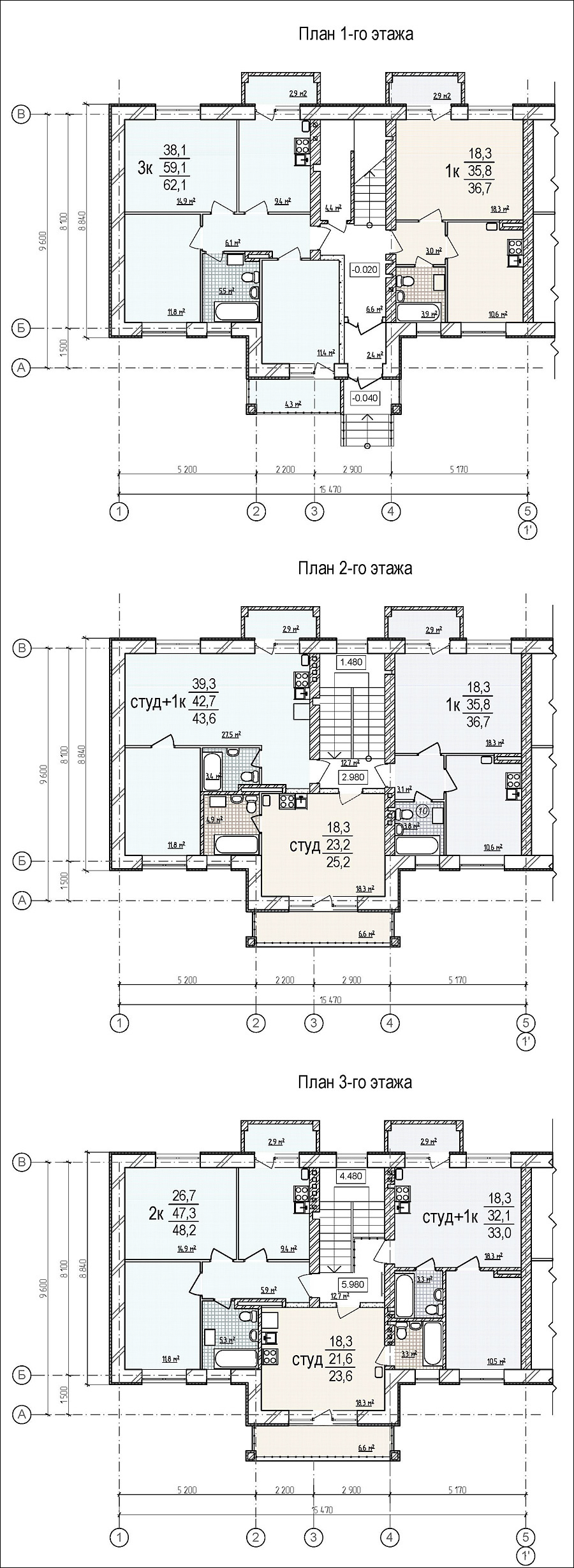
Квартиры в ЖК «Клубный под Зеленоградом»

Самые популярные планировки
Photo
1 комн. квартира
36.72
Photo
Студия квартира
24.72
Photo
1 комн. квартира
23.62
ЖК «Настроение»
Еще 20 вариантов квартир!
от -1 млн рублей

Выберите параметры квартиры

и получите подходящие планировки с ценами!
ЖК «Клубный под Зеленоградом» от застройщика "Мономахъ"

Неподалеку от Зеленограда рядом с деревней Жилино возводится клубный жилой комплекс, который будет состоять из жилых кварталов «Осень», «Зима», «Лето», «Весна» и «Межсезонье». В клубном комплексе продаются квартиры и таунхаусы. Строительством комплекса занимается компания «МономахЪ».

Местоположение: 5 километров от города Зеленограда, 25 км от Москвы, Солнечногорский район.

На территории клубного комплекса под Зеленоградом от компании «МономахЪ» располагаются детские площадки, прогулочные зоны, водоем и места для парковки. Вся территория КЖК является закрытой и охраняется. Неподалеку от ЖК «Зима» находятся магазины и конноспортивный комплекс.

Транспортные магистрали: Новорижское, Ленинградское и Пятницкое шоссе.

Транспорт: от станций метрополитена «Сходненская» и «Митино» идут маршрутки и автобусы до Зеленограда. До ж\д станции «Крюково» можно доехать на автобусах, маршрутках и пригородных электропоездах. От станции «Крюково» до КЖК следуют маршрутные такси и автобусы. В 2025 году запланировано открытие станции метрополитена в Зеленограде. В 2012 году будет открыта ж/д станция «Пятницкое шоссе».

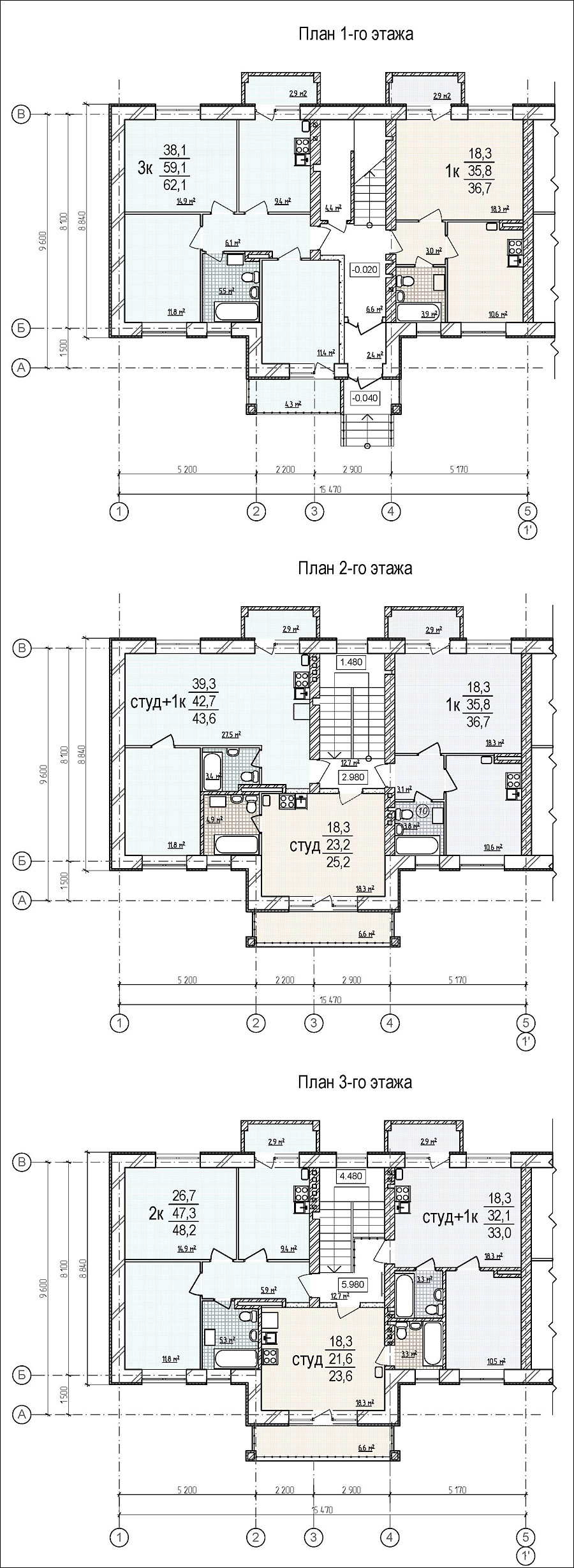
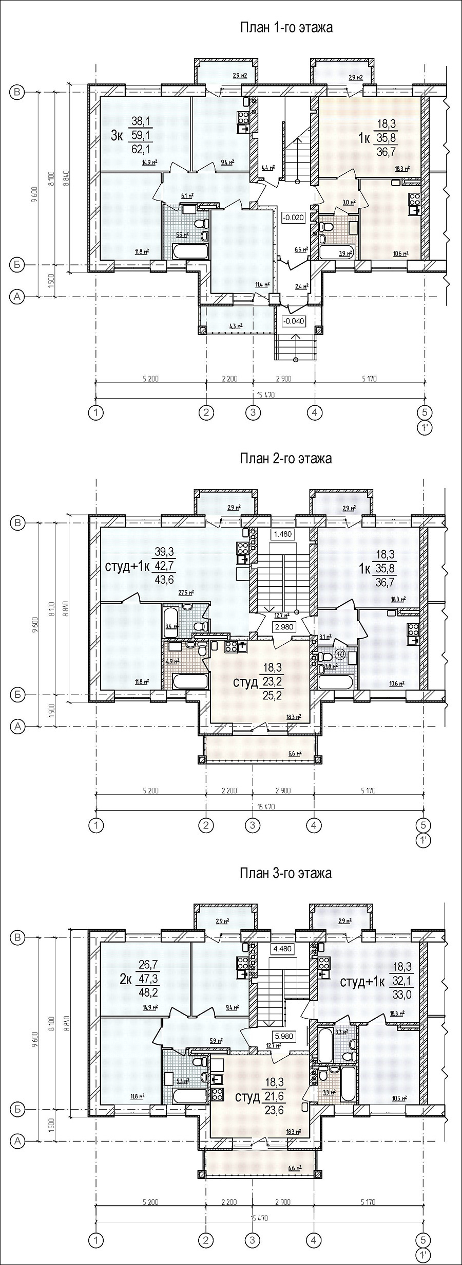
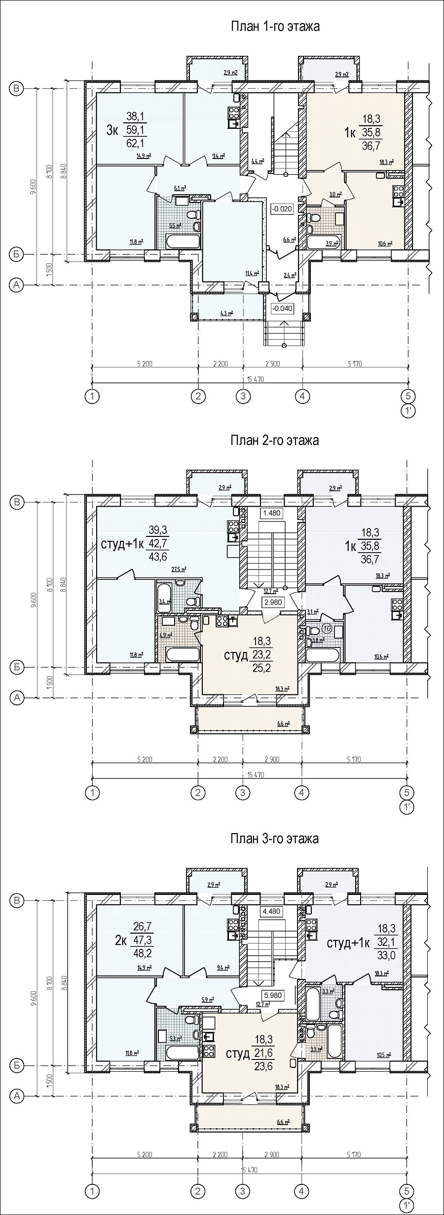
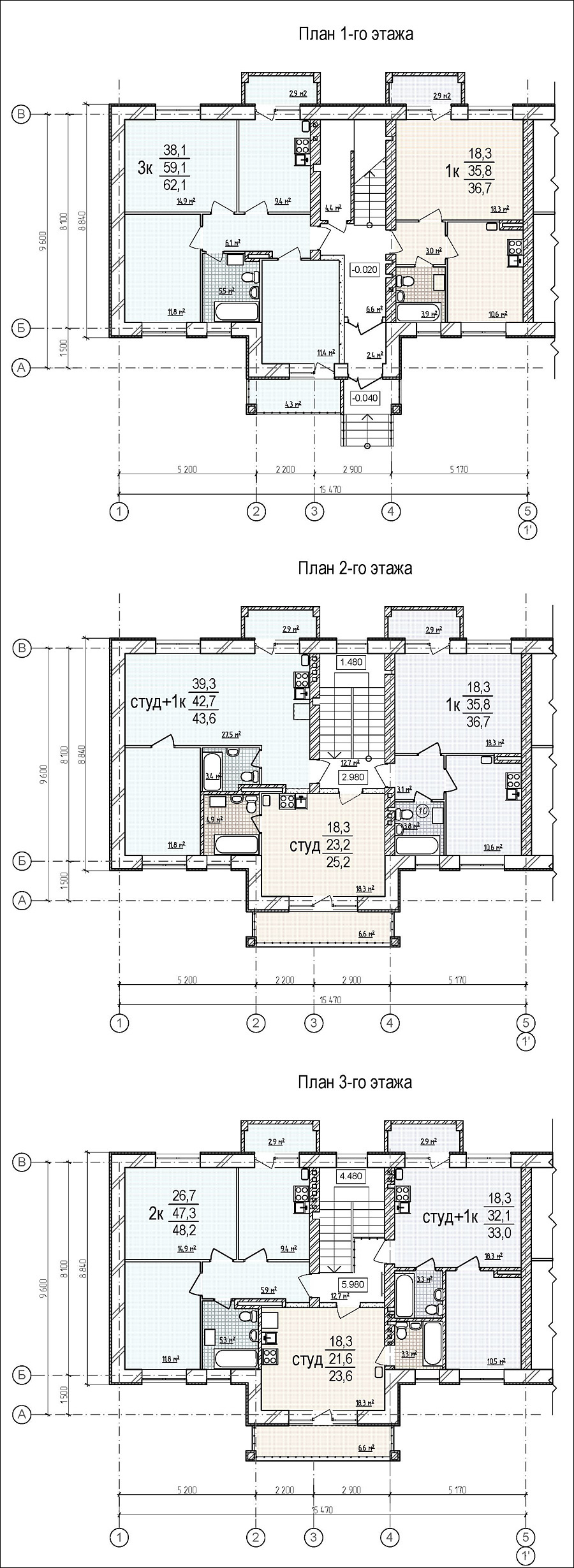
Архитектура и отделка

Photo

Бесплатная консультация менеджера:


Подробно и ненавязчиво расскажем Вам о всех условиях приобретения, стоимости и типах квартир в ЖК «Клубный под Зеленоградом»

Ипотечный калькулятор

Запросите расчет покупки в ипотеку в 2 клика!
Бесплатная консультация специалиста по вопросам приобретения жилья в ипотеку:

Наши контакты

ТЕЛЕФОН
+7 (800) 222-79-46
АДРЕС
Московская обл., Солнечногорский район, дер. Жилино
СТАНЦИИ МЕТРО
Митино ,Сходненская
загрузка карты...
Наверх